Tivoli
175000 kr
Pris (med MVA): 175000 kr
Beskrivelse
- Skreddersydd og tilpasninger mulig.
- Tykkere vegg (68 mm, 90 mm, 135 mm, etc.) mulig.
- Vegg,tak og gulv isolasjonssett tilgjengelig mot pristillegg.
Inkludert i pakken
- Vegg 44mm;
- 19 mm not og fjær tak,kantbord;
- 19 mm not og fjær gulvbord,gulvlister;
- Isolerglass vinduer og dører i treramme ;
- Toveis åpningsbare vinduer med utvendig vinduskarm i metall;
- Impregnerte grunnbjelker;
- 28 mm terrasse med rekkverk;
- Vinduer og dører med komplett beslagg sett;
- Monteringsanvisning.
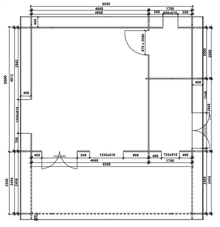
Tekniske opplysninger
Veggtykkelse (mm):
44mm
Bruksareal (m²):
31.21
Antall etasjer:
1
Takformen:
Saltak
Antall rom:
Tre
Innvendige mål (m):
4.668 x 4.912 / 1.70 x 2.0 / 1.70 x 2.868
Utvendige mål (m):
7.50 x 6.50
Bygningsareal(m²):
48.75
Takareal (m²):
49.26
Tak overheng foran (m):
2.50
Laveste vegghøyde (m):
2.34
Mønehøyde (m):
2.99
Antall vinduer (stk.):
2 / 1 / 1
Vindusstørrelsen (m):
1.35 x 0.91 / 0.72 x 0.91 / 0.60 x 0.61
Ytterdør størrelse (m):
1.42 x 2.08
Innerdør størrelse (m):
0.87 x 2.08
Ytterligere filer
Ytterligere muligheter
Montering
Mulig å bestille montering, samt utførelse av annet tilleggsarbeid i henhold til avtale (fundament, isolering, maling mm.)
Individuelle prosjekter
Vi produserer også skreddersydde prosjekter etter deres skisser, tegninger, ideer!
Få flere opplysninger
Ved å sende denne meldingen vil du motta et tilbud på produktet: Tivoli