Sebastian
229000 kr
Pris (med MVA): 229000 kr
Beskrivelse
- Skreddersydd og tilpasninger mulig.
- Tykkere vegg (90 mm, 135 mm, etc.) mulig.
- Vegg,tak og gulv isolasjonssett tilgjengelig mot pristillegg.
Inkludert i pakken
- Vegg 68mm;
- 19 mm not og fjær tak,kantbord;
- 28 mm not og fjær gulvbord,gulvlister;
- Isolerglass vinduer og dører i treramme ;
- Toveis åpningsbare vinduer med utvendig vinduskarm i metall;
- Impregnerte grunnbjelker;
- Vinduer og dører med komplett beslagg sett;
- Monteringsanvisning.
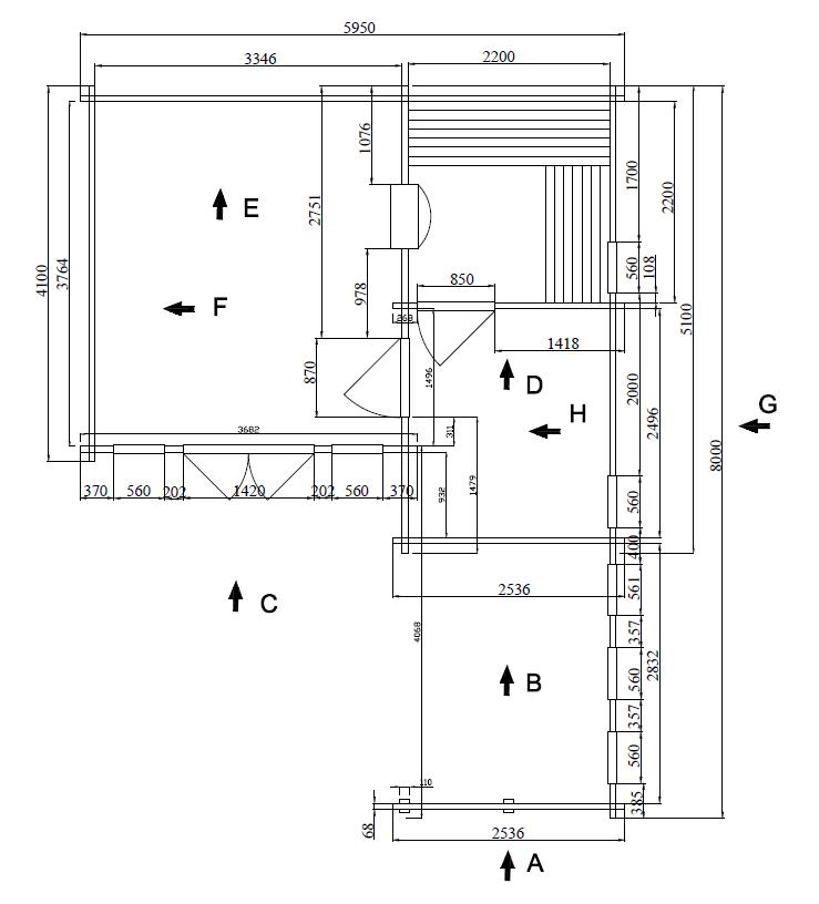
Tekniske opplysninger
Veggtykkelse (mm):
68mm
Bruksareal (m²):
22.92
Antall etasjer:
1
Takformen:
Saltak
Antall rom:
Tre
Innvendige mål (m):
5.614 x 4.764
Utvendige mål (m):
5.75 x 7.80
Bygningsareal(m²):
31.53
Laveste vegghøyde (m):
2.30
Mønehøyde (m):
3.30
Antall vinduer (stk.):
5 / 2
Vindusstørrelsen (m):
0.56 x 1.95 / 0.60 x 0.61
Ytterdør størrelse (m):
1.42 x 2.08
Innerdør størrelse (m):
0.87 x 1.95
Ytterligere muligheter
Montering
Mulig å bestille montering, samt utførelse av annet tilleggsarbeid i henhold til avtale (fundament, isolering, maling mm.)
Individuelle prosjekter
Vi produserer også skreddersydde prosjekter etter deres skisser, tegninger, ideer!
Få flere opplysninger
Ved å sende denne meldingen vil du motta et tilbud på produktet: Sebastian