Prosjekt 64
713000 kr
Pris (med MVA): 713000 kr
Beskrivelse
- Høyde på bjelkene 260 mm (laminert i tykkelse og høyde) som gir en mer solid struktur.
- Skreddersydd og tilpasninger mulig.
- Tykkere vegg 135mm,180mm mulig.
- Vegg,tak og gulv isolasjonssett tilgjengelig mot pristillegg.
Inkludert i pakken
- Gulv - høytrikk impregnerte grunnbjelker,gulvåser. Gulvbord 28 mm,gulvlister. Klargjørt for isolasjon;
- Som fundament til terrassen (hvis en terrasse er planlagt) kommer høytrikkimpregnert bjelkelag.Terrasebord også høyttrykkimpregnerte;
- Bjelker til andre etasje,himlingspanel for første etasje,lekter(hvis andre etasje er planlagt)
- Trapp til andre etasje eller hems(hvis planlagt i prosjekt)
- Vegg og mellommvegg i limtre med laftehjørnet eller city hjørnet.Treramme mellomveg også mulig.
- Tak - bjelker, takstoler, taksperrer, lekter, kantbord, not og fjær takbord,himlingspanel. Tak klartgjørt for isolasjon og takbelegg;
- Limtre vinduer og dører med isolerglass. Dekorativ treramme innvendig og utvendig;
- Innvendige dører i limt treverk med eller uten glass. Dekorativ treramme innvendig og utvendig;
- Vertikale støtter og støttemekanismer hvis beskrevet av prosjektspesifikasjonene;
- Dekorativ fresing av sperreender, kolonner, rekkverk og andre synlige detaljer (design etter avtale);
- Industriell klargjøring av ledningskanaler, plasseringer til stikkontakter og brytere.
- Monteringsinstruks, teknisk dokumentasjon, detaljerte tegninger.
Tekniske opplysninger
Veggtykkelse (mm):
90mm
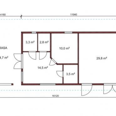
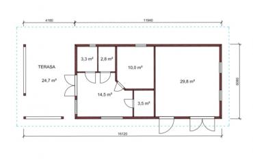
Bruksareal (m²):
63.9
Antall etasjer:
1
Antall rom:
Mer enn tre
Utvendige mål (m):
16.12 x 6.08
Bygningsareal(m²):
98.01
Terrasse (m²):
24.70
Tilleggssett
- Fabrikkmaling og lakkering av vinduer og dører mot tillegg.
- Det kan også bestilles fundament, montering, isolering, takbelegg og maling.
- Vegg isolering mulig, på utsiden eller innsiden (treramme fylt med steinull eller ecowool, kledning med planker som imiterer tømmerstokker eller med andre typer materialer).
Ytterligere muligheter
Montering
Mulig å bestille montering, samt utførelse av annet tilleggsarbeid i henhold til avtale (fundament, isolering, maling mm.)
Individuelle prosjekter
Vi produserer også skreddersydde prosjekter etter deres skisser, tegninger, ideer!
Få flere opplysninger
Ved å sende denne meldingen vil du motta et tilbud på produktet: Prosjekt 64