Montblanc
165000 kr
Pris (med MVA): 165000 kr
Beskrivelse
- Skreddersydd og tilpasninger mulig.
- Tykkere vegg (68 mm, 90 mm, 135 mm, etc.) mulig.
- Vegg,tak og gulv isolasjonssett tilgjengelig mot pristillegg.
Inkludert i pakken
- Vegg 44mm;
- 19 mm not og fjær tak,kantbord;
- 19 mm not og fjær gulvbord,gulvlister;
- Isolerglass vinduer og dører i treramme ;
- Toveis åpningsbare vinduer med utvendig vinduskarm i metall;
- Impregnerte grunnbjelker;
- Trapp;
- 28 mm terrasse med rekkverk;
- Vinduer og dører med komplett beslagg sett;
- Monteringsanvisning.
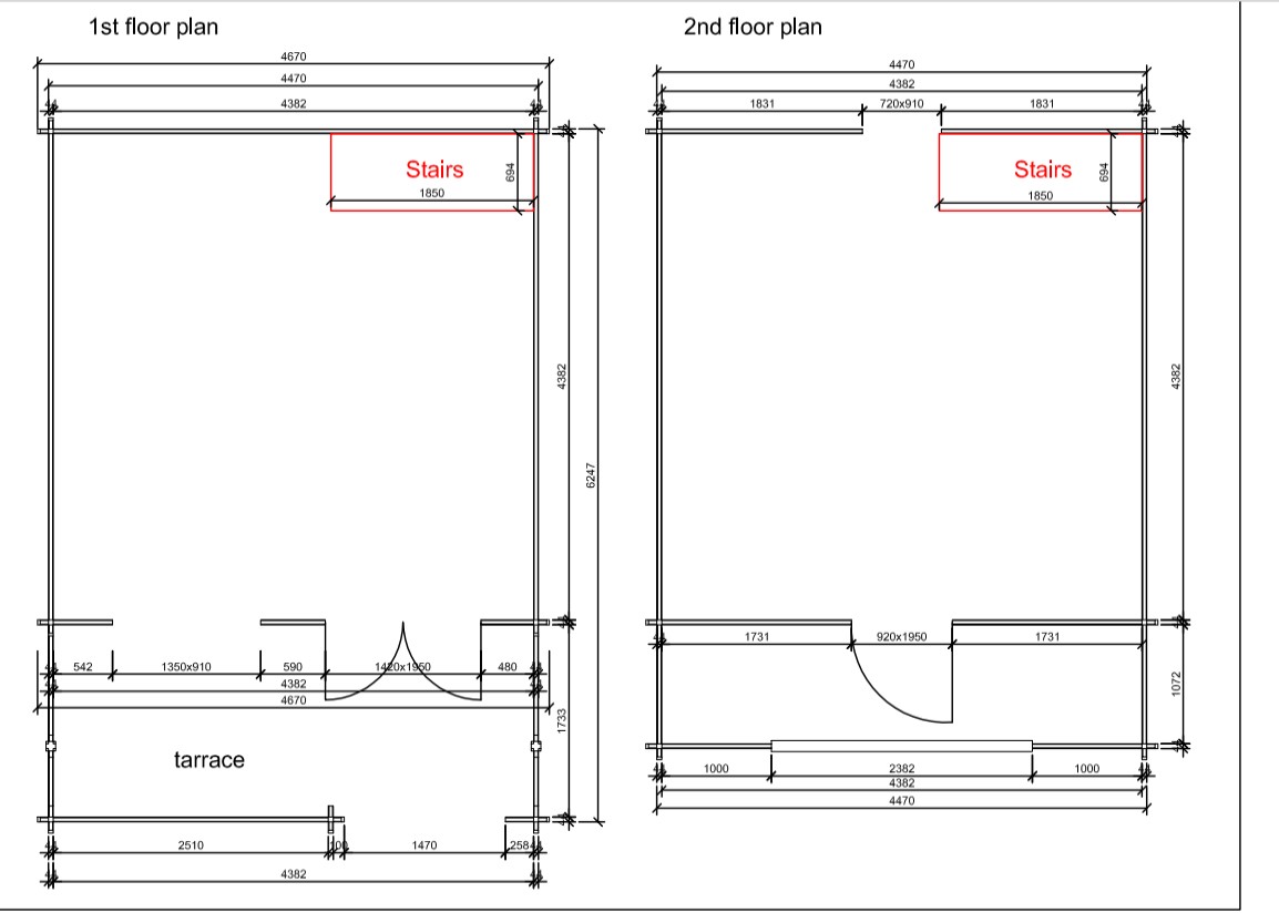
Tekniske opplysninger
Veggtykkelse (mm):
44mm
Bruksareal (m²):
38.4
Antall etasjer:
2
Takformen:
Saltak
Antall rom:
To
Innvendige mål (m):
4.382 x 4.382 / 4.382 x 4.382
Utvendige mål (m):
6.25 x 4.47
Bygningsareal(m²):
27.94
Takareal (m²):
31.27
Tak overheng foran (m):
1.78
Laveste vegghøyde (m):
2.06
Mønehøyde (m):
4.42
Antall vinduer (stk.):
2
Vindusstørrelsen (m):
1.35 x 0.91 / 0.72 x 0.91
Ytterdør størrelse (m):
1.42 x 1.95
Innerdør størrelse (m):
0.92 x 1.95
Ytterligere filer
Tilleggssett
Standard basis byggesett kommer uten tilbygg.Sidebygg på 4,5 kvadrat koster 29 000 kroner(44mm) og den på 10 kvadrat blir 39 000 kroner(44mm)til.
Ytterligere muligheter
Montering
Mulig å bestille montering, samt utførelse av annet tilleggsarbeid i henhold til avtale (fundament, isolering, maling mm.)
Individuelle prosjekter
Vi produserer også skreddersydde prosjekter etter deres skisser, tegninger, ideer!
Få flere opplysninger
Ved å sende denne meldingen vil du motta et tilbud på produktet: Montblanc