Hansa living
199000 kr
Pris (med MVA): 199000 kr
Beskrivelse
- Skreddersydd og tilpasninger mulig.
- Tykkere vegg (68 mm, 90 mm, 135 mm, etc.) mulig.
- Vegg,tak og gulv isolasjonssett tilgjengelig mot pristillegg.
Inkludert i pakken
- Vegg 44mm;
- 19 mm not og fjær tak,kantbord;
- 19 mm not og fjær gulvbord,gulvlister;
- Isolerglass vinduer og dører i treramme ;
- Toveis åpningsbare vinduer med utvendig vinduskarm i metall;
- Impregnerte grunnbjelker;
- Avtakbar stige;
- Vinduer og dører med komplett beslagg sett;
- Monteringsanvisning.
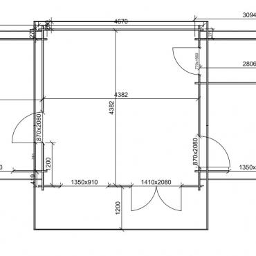
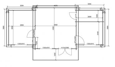
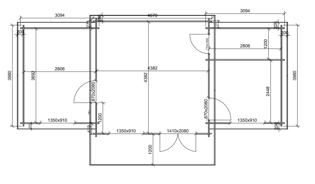
Tekniske opplysninger
Veggtykkelse (mm):
44mm
Bruksareal (m²):
40
Antall etasjer:
1.5
Takformen:
Saltak
Antall rom:
Mer enn tre
Innvendige mål (m):
4.382 x 4.382 / 2.806 x 3.692 / 2.806 x 3.692 + hems 4.382 x 2.17
Utvendige mål (m):
10.17 x 4.47
Bygningsareal(m²):
41.53
Takareal (m²):
56.11
Tak overheng foran (m):
1.20
Laveste vegghøyde (m):
2.14
Mønehøyde (m):
3.96
Antall vinduer (stk.):
3
Vindusstørrelsen (m):
1.35 x 0.91
Ytterdør størrelse (m):
1.41 x 2.08
Innerdør størrelse (m):
0.87 x 2.08
Ytterligere filer
Ytterligere muligheter
Montering
Mulig å bestille montering, samt utførelse av annet tilleggsarbeid i henhold til avtale (fundament, isolering, maling mm.)
Individuelle prosjekter
Vi produserer også skreddersydde prosjekter etter deres skisser, tegninger, ideer!
Få flere opplysninger
Ved å sende denne meldingen vil du motta et tilbud på produktet: Hansa living