Rumbula

110800 kr

Pris (med MVA): 110800 kr

Beskrivelse

caret-down
  • Skreddersydd og tilpasninger mulig.
  • Tykkere vegg (34 mm, 44 mm, 68 mm, etc.) mulig.

Inkludert i pakken

caret-down
  • Garasje i limtre konstruksjon (70 % sterkere enn heltre):
  • Vegg 28mmx130;
  • Stolper 135x135mm;
  • Bjelker 135x135mm;
  • Taksperrer 58x220mm;
  • Takbord 19x100 mm;
  • Kantbord 19x100 mm;
  • Limtre port og døra med beslag;
  • Monteringsanvisning;
  • Takpapp/takshingel,gulv og terasse ikke inkludert.

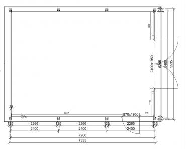
Tekniske opplysninger

caret-down
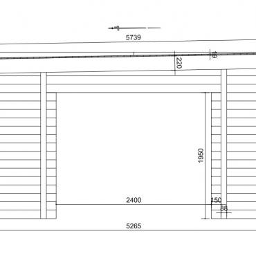
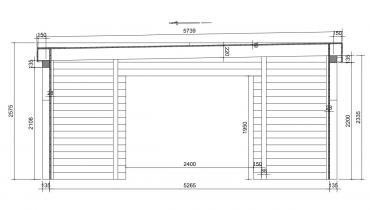
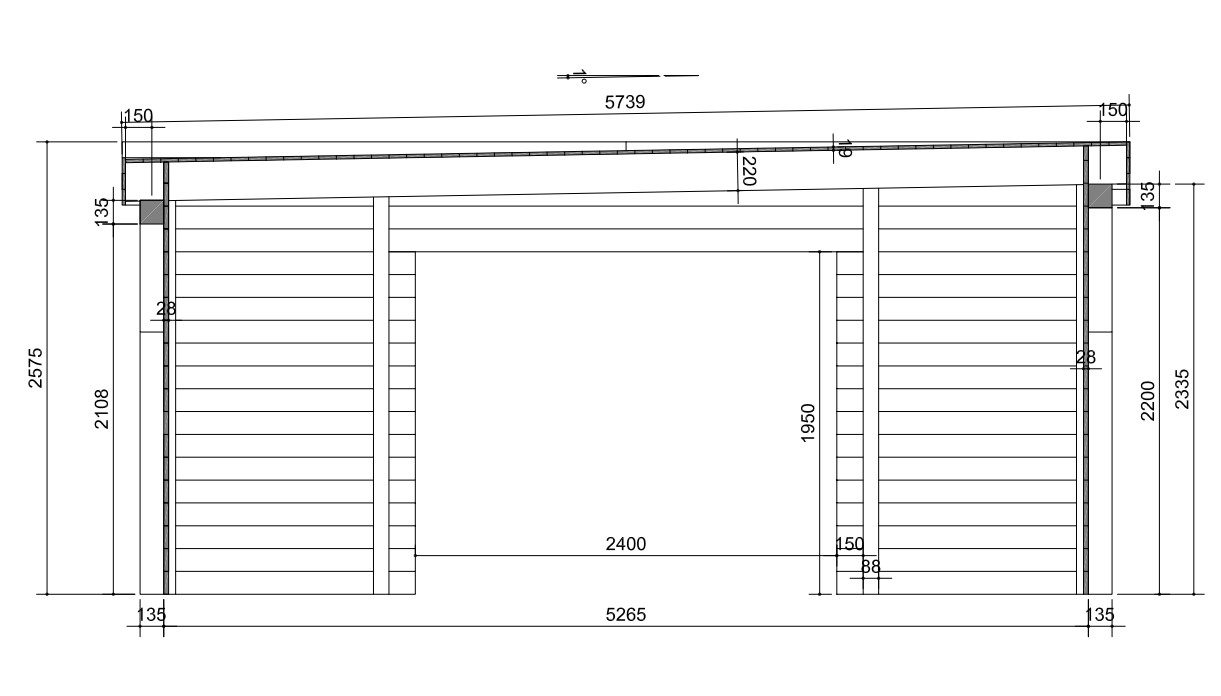
Veggtykkelse (mm):
135mm limtre ramme
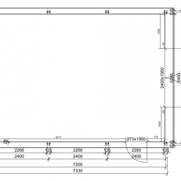
Bruksareal (m²):
37
Takformen:
Pulttak
Antall rom:
Et
Innvendige mål (m):
7.103 x 5.210
Utvendige mål (m):
5.535 x 7.335
Bygningsareal(m²):
40.60
Takareal (m²):
43.50
Laveste vegghøyde (m):
2.108
Mønehøyde (m):
2.335
Ytterdør størrelse (m):
Døra 0.87 x 1.95; Port 2.40 x 1.95
Innkjørsel bredde (m):
2.40
Innkjørsel høyde (m):
1.95

Ytterligere filer

caret-down
Få flere opplysninger
Ved å sende denne meldingen vil du motta et tilbud på produktet: Rumbula

Rumbula

110800 kr