Kadaga
278000 kr
Pris (med MVA): 278000 kr
Beskrivelse
- Carport i limtre konstruksjon for tre biler med lagringsplass;
- Klargjørt for montering av løfteport(ikke inkludert);
- Skreddersydd og tilpasninger mulig.
Inkludert i pakken
- Carport i limtre konstruksjon (70 % sterkere enn heltre):
- Vegg 28x135mm(34mm,44mm og 68mm mulig)
- Stolper 180x180mm;
- Bjelker 220x180mm;
- Taksperrer 58x140mm;
- Takbord 19x130 mm;
- 2stk enkeltdør med beslag;
- Kantbord 28x130 mm;
- Monteringsanvisning;
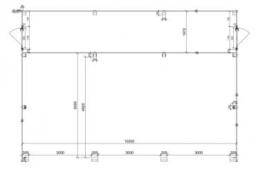
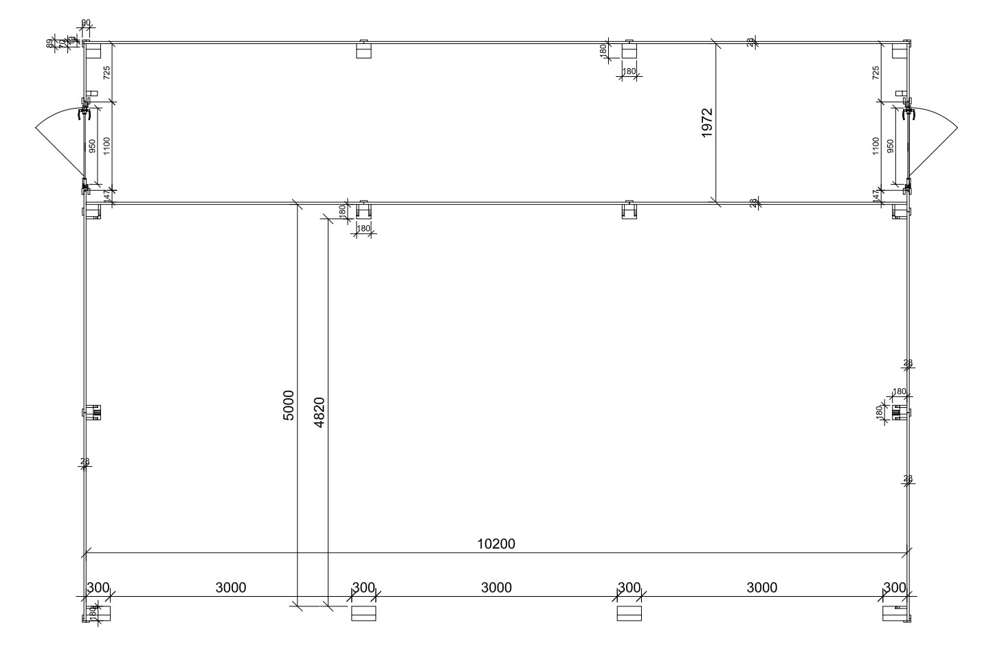
Tekniske opplysninger
Veggtykkelse (mm):
180mm limtre ramme
Bruksareal (m²):
71
Bygningsarea(m²)l:
73.93
Takformen:
Saltak
Innvendige mål (m):
6.97 x 10.20
Utvendige mål (m):
7.21 x 10.26
Takareal (m²):
107
Laveste vegghøyde (m):
1.86
Mønehøyde (m):
4.65
Ytterdør størrelse (m):
1.92 x 0.95
Innkjørsel bredde (m):
3 x 3
Innkjørsel høyde (m):
2.50
Få flere opplysninger
Ved å sende denne meldingen vil du motta et tilbud på produktet: Kadaga