Vigo 010 Plus
69900 kr
Pris (med MVA): 69900 kr
Tekniske opplysninger
Veggtykkelse (mm):
40mm
Bruksareal (m²):
15.56
Takformen:
Saltak
Husets form:
Firkantet
Antall rom:
To
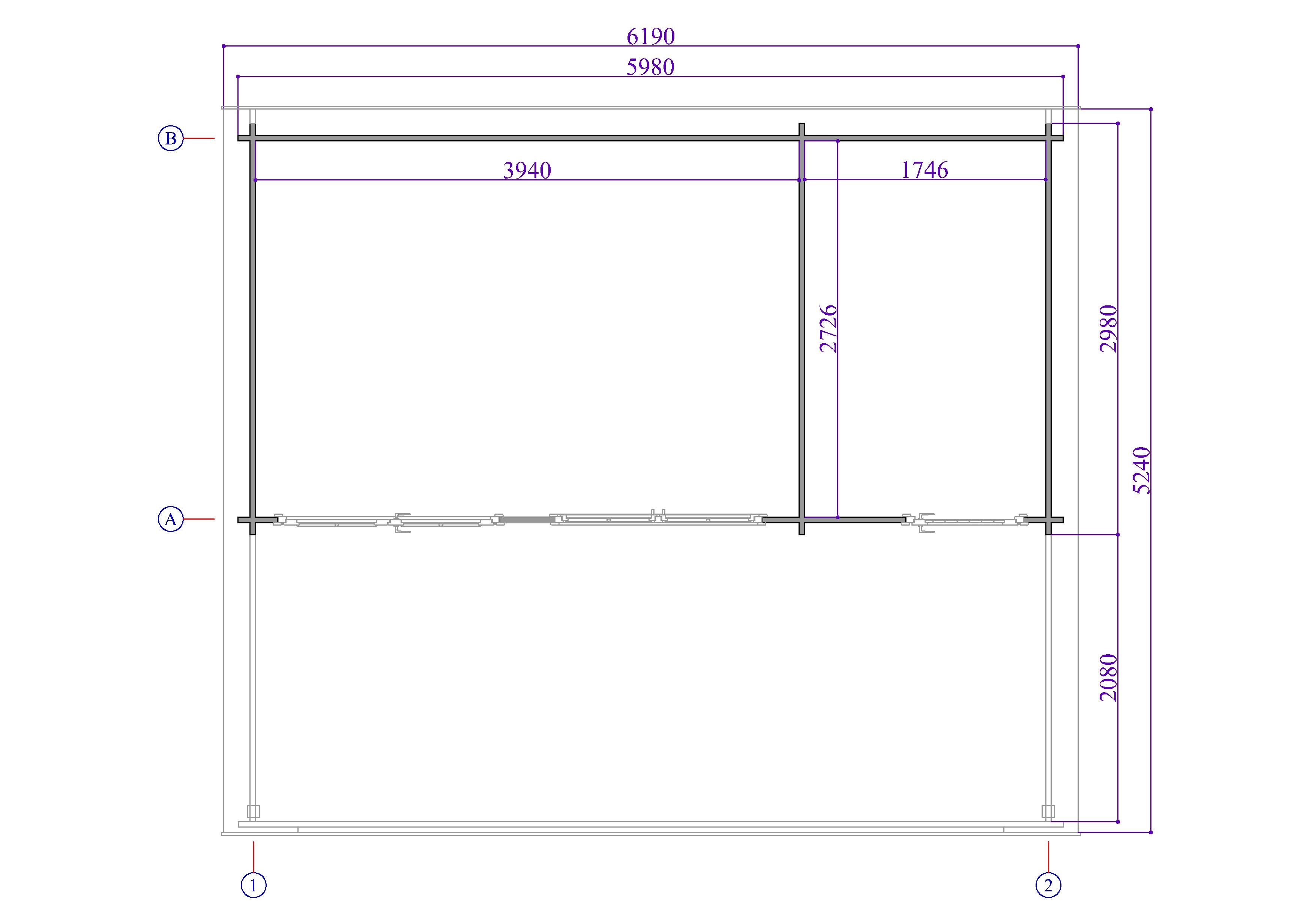
Innvendige mål (m):
3.94 x 2.73 / 1.75 x 2.73
Utvendige mål (m):
5.80 x 4.97
Bygningsareal(m²):
28.83
Takareal (m²):
33.30
Tak overheng foran (m):
2.10
Laveste vegghøyde (m):
2.05
Mønehøyde (m):
2.60
Antall vinduer (stk.):
1
Vindusstørrelsen (m):
1.50 x 0.99
Ytterdør størrelse (m):
1.56 x 1.87 / 0.81 x 1.87
Inkludert i pakken
- Takbord 19 mm,kantbord;
- Gulvbord 19 mm,gulvlister;
- Glassdør i limtre;
- Vippe-sving glassvinduer;
- Impregnerte grunnbjelker;
- Lav metallterskel;
- Dør med sylinderlås og håndtak;
- Monteringsanvisning.
Tilleggssett
- Tykkere gulv 28mm not og fjær gulvbord 2500kr med moms
- Isolerglass vinduer,dører 3000kr med moms
Få flere opplysninger
Ved å sende denne meldingen vil du motta et tilbud på produktet: Vigo 010 Plus