Vigo 010

62500 kr

Pris (med MVA): 62500 kr

Tekniske opplysninger

caret-down
Veggtykkelse (mm):
40mm
Bruksareal (m²):
15.56
Takformen:
Saltak
Husets form:
Firkantet
Antall rom:
Et
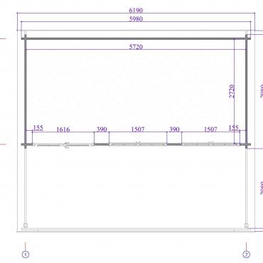
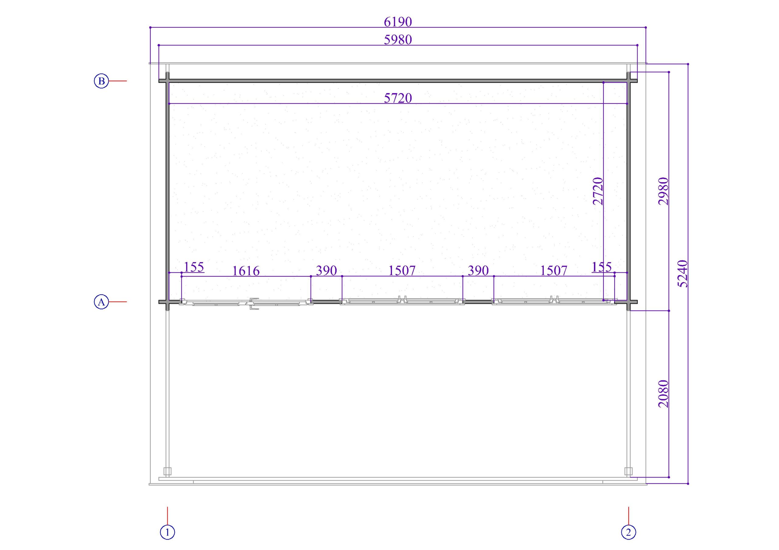
Innvendige mål (m):
5.72 x 2.72
Utvendige mål (m):
5.80 x 4.97
Bygningsareal(m²):
28.83
Takareal (m²):
33.30
Tak overheng foran (m):
2.10
Laveste vegghøyde (m):
2.05
Mønehøyde (m):
2.60
Antall vinduer (stk.):
2
Vindusstørrelsen (m):
1.50 x 0.99
Ytterdør størrelse (m):
1.56 x 1.87

Inkludert i pakken

caret-down
  • 19 mm tak,kantbord;
  • 19 mm gulvbord,gulvlister;
  • Glassdør i limtre;
  • Vippe-sving vindu i treramme;
  • Impregnerte grunnbjelker;
  • Lav metallterskel;
  • Dør med sylinderlås og håndtak;
  • Monteringsanvisning.
Tilleggssett
caret-down
  • Tykkere gulv 28mm not og fjær gulvbord 3000kr med moms
  • Isolerglass vinduer,dører 4000kr med moms
Få flere opplysninger
Ved å sende denne meldingen vil du motta et tilbud på produktet: Vigo 010

Vigo 010

62500 kr