Sanremo 6
99700 kr
Pris (med MVA): 99700 kr
Beskrivelse
Hagekontor,lysthus, oransjeri - vår nye serie med moderne annekser med det bredeste bruksområdet! Dette luftige rommet med skyvedør lar deg nyte sommerens varme og sjarmerende dufter uten å forlate din favoritt loungestol eller sofa. I kaldt vær kan døren enkelt lukkes og blokkere vind og kulde ute, mens den fantastiske utsikten over hagen og området rundt forblir!
Inkludert i pakken
- Vegg 45 mm;
- Impregnerte fundamentbjelker 40x60mm, langs perimeter 80x60mm;
- Treramme 90x90mm og 45x90mm;
- 19 mm not-fjær tak og gulvbord;
- Taksperrer 45x145mm;
- Vindbord 40x120mm, 19x120mm;
- Skyvedøra i aluminiumsramme (antrasittgrå);
- Dørlås;
- Monteringsanvisning.
Tekniske opplysninger
Veggtykkelse (mm):
45mm
Bruksareal (m²):
12.49
Takformen:
Pulttak
Husets form:
Firkantet
Med gulv / uten gulv:
Med gulv
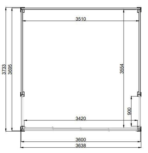
Innvendige mål (m):
3.51 x 3.56
Utvendige mål (m):
3.64 x 3.73
Bygningsareal(m²):
13.58
Takareal (m²):
14.10
Laveste vegghøyde (m):
2.30
Mønehøyde (m):
2.54
Ytterdør størrelse (m):
3.42x2.02 ( 4 stk) 0.90x2.02 (1+1)
Tilleggssett
- Tykkere gulv 28mm not og fjær gulvbord 2000kr med moms
Få flere opplysninger
Ved å sende denne meldingen vil du motta et tilbud på produktet: Sanremo 6