Sanremo 5

92600 kr

Pris (med MVA): 92600 kr

Beskrivelse

caret-down

Hagekontor,lysthus, oransjeri - vår nye serie med moderne annekser med det bredeste bruksområdet! Dette luftige rommet med skyvedør lar deg nyte sommerens varme og sjarmerende dufter uten å forlate din favoritt loungestol eller sofa. I kaldt vær kan døren enkelt lukkes og blokkere vind og kulde ute, mens den fantastiske utsikten over hagen og området rundt forblir!


Inkludert i pakken

caret-down
  • Vegg 45 mm;
  • Impregnerte fundamentbjelker 40x60mm, langs perimeter 80x60mm;
  • Treramme 90x90mm og 45x90mm;
  • 19 mm not-fjær tak og gulvbord;
  • Taksperrer 45x145mm;
  • Vindbord 40x120mm, 19x120mm;
  • Skyvedøra i aluminiumsramme (antrasittgrå);
  • Dørlås;
  • Monteringsanvisning.

Tekniske opplysninger

caret-down
Veggtykkelse (mm):
45mm
Bruksareal (m²):
12.49
Takformen:
Pulttak
Husets form:
Firkantet
Med gulv / uten gulv:
Med gulv
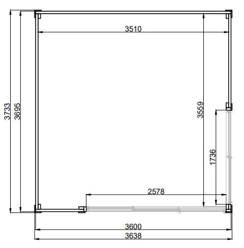
Innvendige mål (m):
3.51 x 3.56
Utvendige mål (m):
3.64 x 3.73
Bygningsareal(m²):
13.58
Takareal (m²):
14.10
Laveste vegghøyde (m):
2.30
Mønehøyde (m):
2.54
Ytterdør størrelse (m):
2.58x2.02 ( 3 stk) 1.74x2.02 (2 stk)
Tilleggssett
caret-down
  • Tykkere gulv 28mm not og fjær gulvbord 2000kr med moms
Få flere opplysninger
Ved å sende denne meldingen vil du motta et tilbud på produktet: Sanremo 5

Sanremo 5

92600 kr