Napoli

63900 kr

Pris (med MVA): 63900 kr

Tekniske opplysninger

caret-down
Veggtykkelse (mm):
28mm
Bruksareal (m²):
15.41
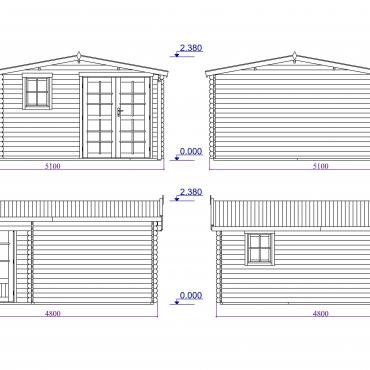
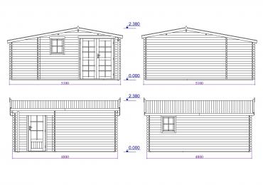
Takformen:
Saltak
Husets form:
Firkantet
Antall rom:
To
Med gulv / uten gulv:
Med gulv
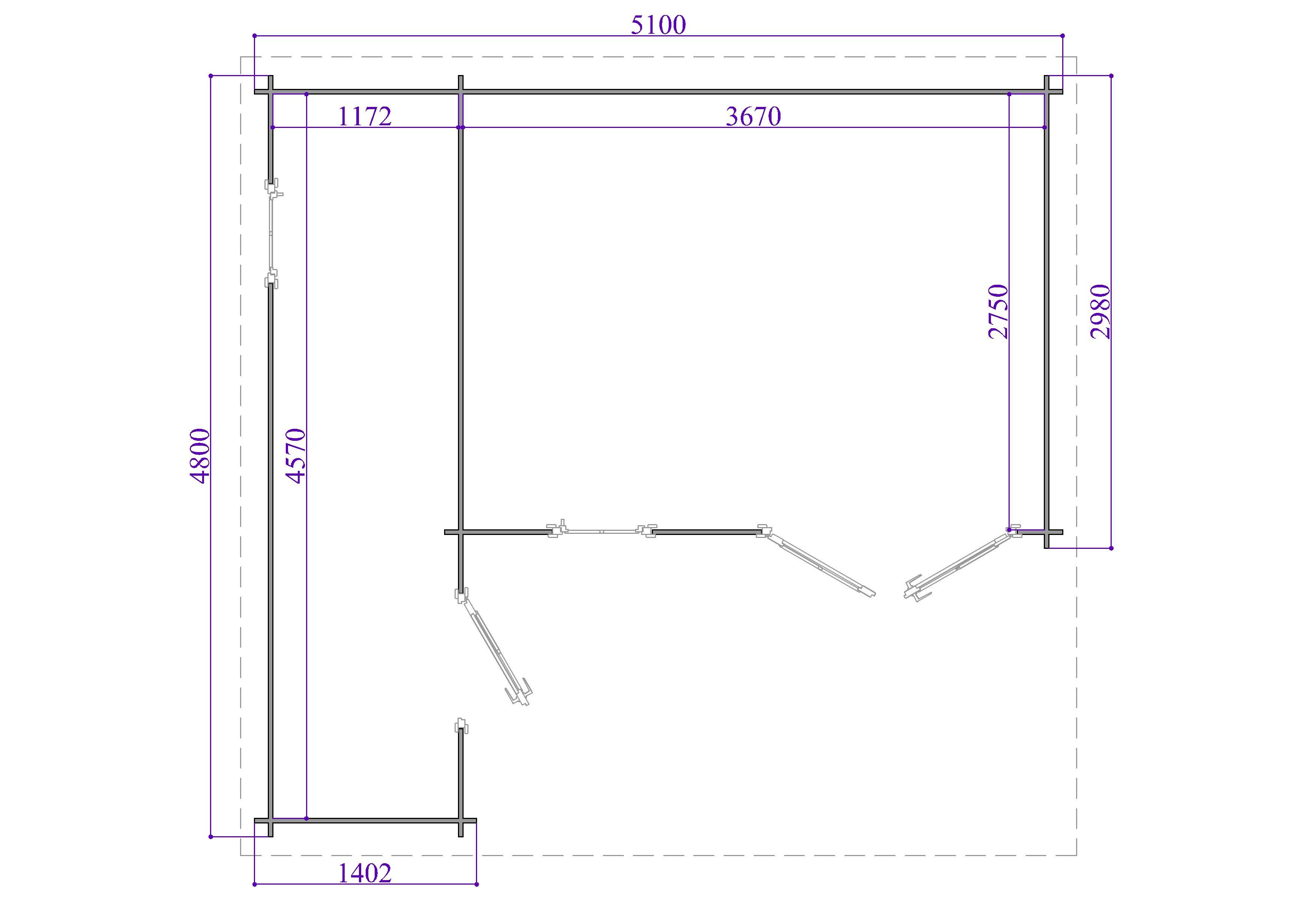
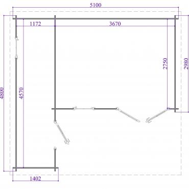
Innvendige mål (m):
1.17 x 4.57 / 3.67 x 2.75
Utvendige mål (m):
4.92 x 4.62
Bygningsareal(m²):
22.73
Takareal (m²):
26.60
Tak overheng foran (m):
2.10
Laveste vegghøyde (m):
1.80/2.05
Mønehøyde (m):
2.50
Antall vinduer (stk.):
2
Vindusstørrelsen (m):
0.63 x 0.77
Ytterdør størrelse (m):
1.56 x 1.87 / 0.81 x 1.87
Terrasse (m²):
3.68 x 1.82

Inkludert i pakken

caret-down
  • 19 mm tak,kantbord;
  • 19 mm gulvbord,gulvlister;
  • Glassdør i limtre;
  • Vippe-sving glassvindu i treramme;
  • Impregnerte grunnbjelker;
  • Lav metallterskel;
  • Dør med sylinderlås og håndtak;
  • Monteringsanvisning.
Tilleggssett
caret-down
  • Tykkere gulv 28mm not og fjær gulvbord 3000kr med moms
  • Isolerglass vinduer,dører 3500kr med moms
Ytterligere muligheter
Montering
Mulig å bestille montering, samt utførelse av annet tilleggsarbeid i henhold til avtale (fundament, isolering, maling mm.)
Individuelle prosjekter
Vi produserer også skreddersydde prosjekter etter deres skisser, tegninger, ideer!
Få flere opplysninger
Ved å sende denne meldingen vil du motta et tilbud på produktet: Napoli

Napoli

63900 kr