Lilas 16

63800 kr

Pris (med MVA): 63800 kr

Tekniske opplysninger

caret-down
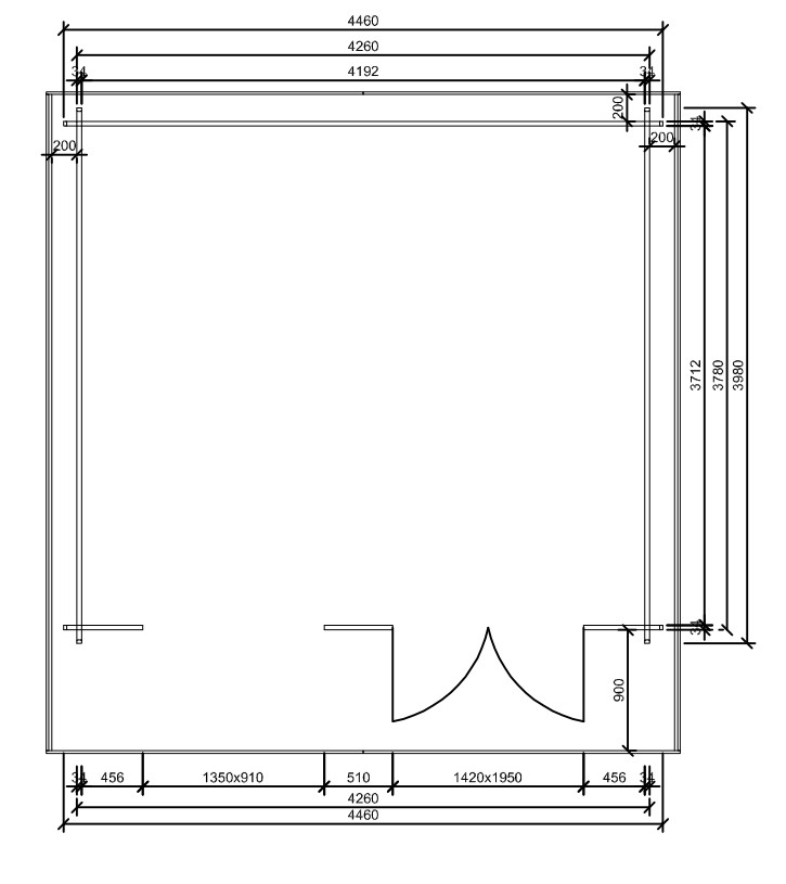
Veggtykkelse (mm):
34mm
Bruksareal (m²):
15.56
Takformen:
Saltak
Husets form:
Firkantet
Antall rom:
Et
Med gulv / uten gulv:
Med gulv
Innvendige mål (m):
3.712 x 4.192
Utvendige mål (m):
4.26 x 3.78
Bygningsareal(m²):
16.10
Takareal (m²):
23.72
Laveste vegghøyde (m):
2
Mønehøyde (m):
2.60
Antall vinduer (stk.):
1
Vindusstørrelsen (m):
1.35 x 0.91
Ytterdør størrelse (m):
1.42 x 1.95

Inkludert i pakken

caret-down
  • 19 mm tak,kantbord;
  • 19 mm gulvbord,gulvlister;
  • Glassdør i limtre;
  • Glassvindu, limt treramme med metall utvendig vinduskarm;
  • Impregnerte grunnbjelker;
  • Lav metallterskel;
  • Dør med sylinderlås og håndtak;
  • Treskodder og blomsterkasse;
  • Monteringsanvisning.
Tilleggssett
caret-down
  • Skreddersydd og tilpasninger mulig.
Få flere opplysninger
Ved å sende denne meldingen vil du motta et tilbud på produktet: Lilas 16

Lilas 16

63800 kr